网站首页
关于我们
产品中心
新闻中心
投资合作者关系
留言反馈
联系我们
产品中心
西药房架柜系列
M系列新型药架
[推荐特色产品]兰桂合金系列药架
旋转药盘架系列
药盘架系列
库房药架系列
调剂台(电脑发药台系列)
处方柜,药品柜,切片柜系列
医用车,药盘,更衣柜系列
电子药架系列
中药房柜台系列
药房自动化系列设备
自动售取药机系列设备
GSP药品冷柜系列设备
处方柜,药品柜,切片柜系列
当前位置:
首页
>
产品中心
> 西药房架柜系列 > 处方柜,药品柜,切片柜系列
YG08型移门矮柜
发布人:
admin
发布时间:
2018年02月06日
点击次数:1317
点击购买
点击购买
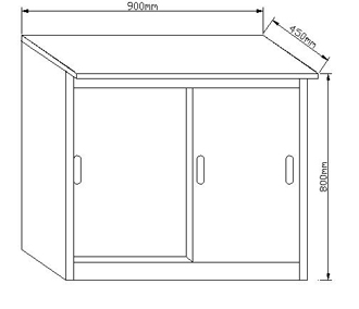
产品名称
YG08
型移门矮柜
产品概述
◆
采用优质钢板制成,表面静电喷塑,移门内置固定层板一件。
产品规格
长×宽×高:
900mm
×
450mm
×
800mm
上一篇:
STC1型手推车(折叠式)
下一篇:
YG07型摆药矮柜
《中华人民共和国电信与信息服务业务经营许可证》 编号:
苏ICP备2021051653号-1
版权所有:无锡中承兰桂科技有限公司
苏公网安备 32021402000990号